LC HydroSpace 1600
Windy hydrauliczne
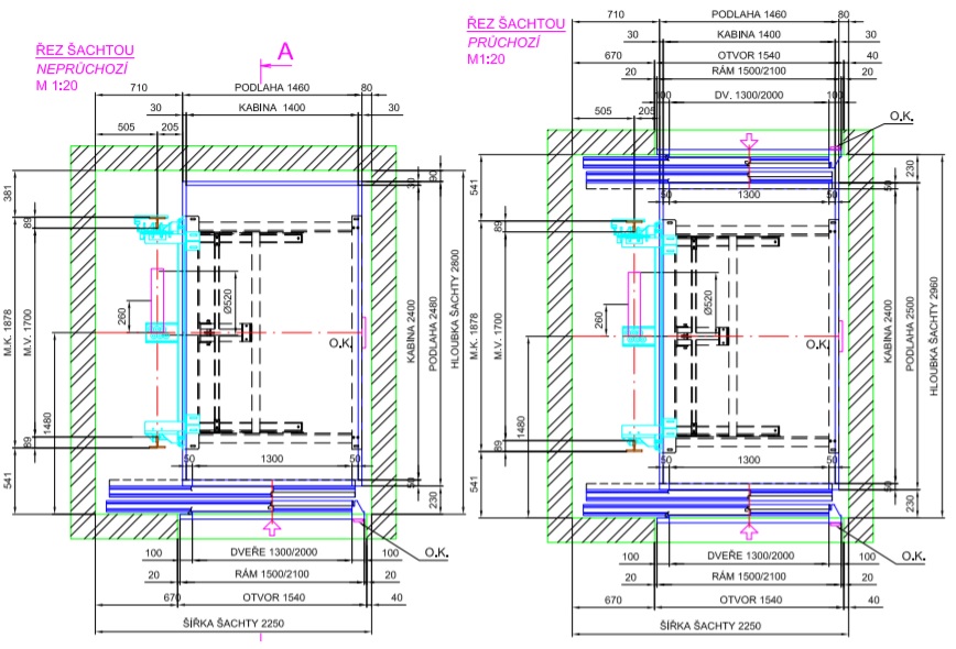
Příklad řešení
Windy hydrauliczne należą do urządzeń, które doskonale sprawdzą się w Twoim domu. Ze względu na swoją ekonomiczność, niezawodność i bezpieczeństwo stanowią ciekawą alternatywę dla wind linowych.

LC HydroSpace to:
• Hydrauliczna winda na zamówienie o udźwigu od 320 kg do 1600 kg
• Idealne rozwiązanie dla budynków z 5 lub 6 przystankami (wysokość podnoszenia do 15 m)
• Lepsze dopasowanie do szybu niż winda linowa – technologię można umieścić z boku lub z tyłu
• LC HydroSpace nie wymaga maszynowni – napęd można umieścić w skrzynce, co oszczędza miejsce i koszty
• Najnowocześniejsze technologie napędów hydraulicznych od czołowego europejskiego producenta
• Bardzo cicha winda z płynną jazdą, łatwa obsługa serwisowa i konserwacja
• Idealne rozwiązanie dla wind z 3 wejściami do kabiny lub dla układów przelotowych pod kątem 90 stopni
• Koszt zakupu jest niższy niż w przypadku windy linowej
Technické parametry
- šachta rozměry 2250x2800mm
- kabina rozměry 1400x2400x 2150mm / 21 osob
- vhodný pro imobilní osoby do nových budov
- strojovna vedle šachty nebo samostatný BOX
- evropská kvalita zpracování celého výtahu
- připraveno pro průchozí variantu kabiny - 2 vstupy
- vstupní dveře šířky 1300 x 2000mm
Příklady referencí
Energeticky úsporný výtah



.jpg)
.jpg)
.jpg)
.jpg)
.jpg)
.jpg)
.jpg)
.jpg)
.jpg)
.jpg)
.jpg)
.jpg)
.jpg)
.jpg)
.jpg)
.jpg)
.jpg)
.jpg)






